Calpeda
- Центробежные насосы
- Многоступенчатые насосы
- Циркуляционные насосы
- Скважинные насосы
- Скважинные 4-6-8 дюймовые насосы
- Двигатели 4-6-8 дюймовые
- Самовсасывающие насосы
- Переферийные и шестеренчатые насосы
- Вертикальные погружные насосы
- Дренажные погружные насосы
- Канализационные насосные станции
- Бустреные и противопожарные насосные стнции
- Аксессуары
Pedrollo
- Вихревые насосы
- Центробежные насосы
- Многоступенчатые насосы
- Многоступенчатые вертикальные насосы
- Самовсасывающие насосы
- Центробежные стандартизированные насосы
- Погружные многоступенчатые насосы
- Скважинные вихревые 4-X дюймовые насосы
- Скважинные моноблочные 4-X дюймовые насосы
- Скважинные 4-X дюймовые насосы
- Скважинные 6-И дюймовые насосы
- Двигатели 4-X и 6-И дюймовые
- Погружные насосы
- Насосные станции
- Аксессуары

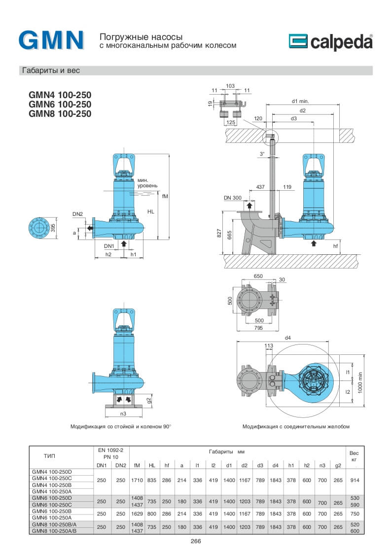
Дренажные погружные насосы Calpeda GMC
Основные материалы
Корпус насоса: чугун EN-GJL-250
Рабочее колесо: чугун EN-GJL-250+Ni
Корпус двигателя, Крышка двигателя: чугун EN-GJL-250
Вал: Хромированная сталь AISI 420B
Мех. уплотнение манжетное из нитрила до 1 кВт
Мех. уплотнение со стороны двигателя: графит/керамика для мощностей выше 1 кВт.
Мех. уплотнение со стороны насоса: карбид кремния / карбид кремния
Исполнение
Погружные насосы GMC с одноканальным рабочим колесом производства Calpeda (Италия) имеют двойное уплотнение с масляной камерой (манжетное уплотнение со стороны двигателя для моделей мощностью до 1 кВт) и подающий патрубком DN 50-65-80-100-150.
Применение насосов Calpeda GMC
Для грязной и очень грязной воды, прошедшей через решеточную фильтрацию.
Особенно рекомендуются для выкачивания фекальной воды из канализационных колодцев или фекальных емкостей первого сбора или промышленной сточной воды. Твердые частицы макс. от 40 до 100 мм.
Эксплуатационные ограничения
Температура жидкости до 40°С.
Макс. глубина погружения: 20 м (с проводом соответствующей длины).
Непрерывный режим работы (с водой на минимальном уровне погружения).
Двигатель
2-х, 4-полюсный индукционный двигатель, 50 Гц Однофазная модификация: 230 В ±10%, с поплавком и встроенным конденсатором. Трехфазная модификация: 400 В ±10% до 3,2 кВт
400/690 В ±10% выше 3,2 кВт Изоляция класса "Н". Защита ІР 68. Макс. количество пусков: 15 в час с регулярными интервалами
Кабель:H07RN-F,длина 10м.